Chalet Miravidi, Montchavin-La Plagne, Jacuzzi & Sauna
Preview only — see all hotel photos
See all 63 photos
Hotel op de kaart tonen
Chalet Miravidi, Montchavin-La Plagne, Jacuzzi & Sauna
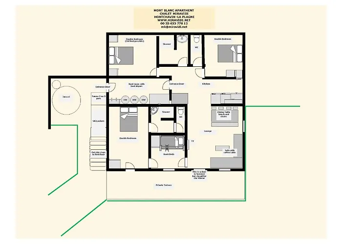
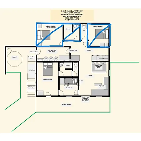
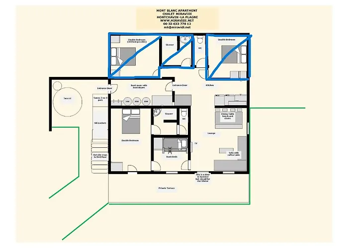
Chalet Miravidi, Montchavin-La Plagne, Jacuzzi & Sauna is gelegen binnen ongeveer 15-minuten rijafstand van de Kapel van Saint-Grat de Vulmix en binnen 3 km van Charmettoger-skilift. Als u een uitstapje naar La Plagne hebt gepland om te skiën, dan is het appartement inclusief een skiopslag.
Voor extra gemak is er een inloopdouche en een apart toilet beschikbaar in de accommodatie. Bovendien zijn er ook een haardroger en handdoeken.
Chalet Miravidi, Montchavin-La Plagne, Jacuzzi & Sauna is voorzien van een complete keuken en biedt u een oven en een vaatwasser gedurende uw verblijf. Dit appartement is op ongeveer 200 meter afstand van Navette Station "Le Camping" bushalte en op 12 km van Telebus treinstation. Dit appartement biedt een bubbelbad en een sauna voor ontspanning en verfrissing aan. Gasten hebben de mogelijkheid om hun verblijf in deze accommodatie nog spannender te maken door deel te nemen aan sneeuwskiën en wandelen. Chalet Miravidi, Montchavin-La Plagne, Jacuzzi & Sauna heeft een terras met uitzicht over de tuin.
Voorzieningen
Hoofdvoorzieningen
- Wi-Fi
- Gratis parkeren
- Sportactiviteiten
- Spa en ontspanning
- Kindvriendelijk
- Geen dieren toegestaan
Faciliteiten
- Roken is niet toegestaan
- WiFi
- Gratis parkeren
- Off-site parkeerplaats
- Huisdieren zijn niet toegestaan
- Voordeur skiën
- Skiopslagkamer
- Rookdetectors
- Brandblussers
- Elektrische waterkoker
- Keukengerei
- Buiten eethoek
- Barbecuefaciliteiten
- Sauna
- Jacuzzi
- Kanoën
- Skiën
- Wandelen
- Paardrijden
- Fietsen
- Tennisveld
- Visserij
- Verwarming
- Zithoek
- Patio
- Terras
- Eettafel
- Wasmachine
- Flat-screen TV
- Ledikanten/ Babybedden
Beleid
- Kinderen en extra bedden
- Er zijn geen extra bedden in de kamer.
Kaart
Locale bezienswaardigheiden
Luchthavens
- Luchthaven Annecy-Meythet (110 km)
Treinstations
- Telebus (8 km)
Beoordelingen
100% Geverifieerde Beoordelingen