米拉维迪木屋公寓
Preview only — see all hotel photos
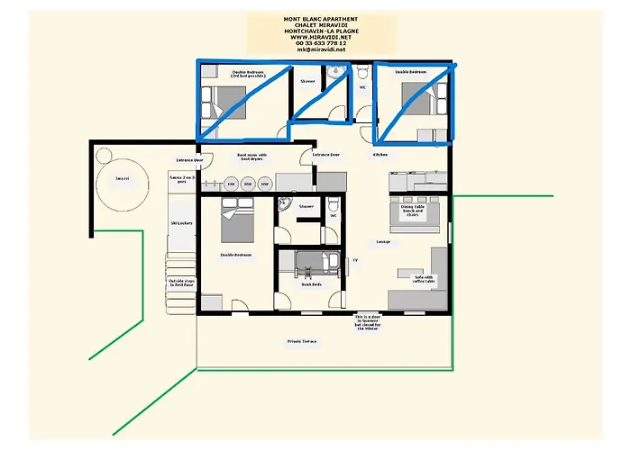
See all 63 photos 1 /
63
8.8
23评论
Best options for your travel dates
在地图上显示酒店
米拉维迪木屋公寓
Chalet Miravidi, Montchavin-La Plagne, Jacuzzi & Sauna设有按摩浴缸和桑拿,让客人放轻松. 这家住处离2300滑雪缆车3.4公里,离蒙特夏文雷高切滑雪学校只有2.2公里.
客人可以在Restaurant le Chaudron尝试法国佳肴.它距离公寓仅600米. 公寓坐落在Vanoise高速公路旁边.
Chalet Miravidi, Montchavin-La Plagne, Jacuzzi & Sauna是在拉普拉涅理想的下榻之地,客房配有休息区,电视和卫星频道平板电视. 客房配有羽绒枕,丰满的羽绒枕头和羽毛绒枕头,步入式淋浴间和独立卫生间.
阿讷西-梅叶特机场距离这家位于拉普拉涅的公寓有110公里. 公寓提供徒步旅行,骑马和滑雪,使得休闲方式的选择多样化.
更多 +
收起 -
请等以下,我们给您检查可提供的客房.
搜寻酒店
设施
主要设施
- 无线网络连接
- 免费停车
- 活动
- Spa和放松
- 方便儿童使用
- 不允许携带宠物
客房设施
概况:
- 非吸烟区
- WiFi
- 免费停车场
- 酒店外停车场
- 不可以携带宠物
- 滑雪通道
- 滑雪设备储藏室
- 烟雾报警器
- 灭火器
餐饮服务:
- 电热水壶
- 厨房器具
- 户外用餐区
运动及休闲:
- 烧烤设施
- 桑拿浴
- 按摩浴缸
- 皮划艇
- 滑雪
- 徒步旅行
- 骑马
- 骑自行车运动
- 网球场
- 钓鱼池
客房设施:
- 暖气
- 休息区
- 内庭院
- 平台
- 餐桌
- 洗衣机
- 平面电视
- 婴儿床/ 婴儿摇篮
政策
入住时间: 16:00至22:00
离店时间: 06:00至10:00
- 儿童和加床费
- 不提供在客房里加床。
地图
当地名胜古迹
机场
- 阿讷西-梅叶特机场 (110公里)
火车站
- 泰勒巴斯缆车 (8公里)
评论
发表点评
100%真实住客点评
8.8 /10